584 Commissioners Road W, London South, ON

$2,250,000

Previous Next

0.99

Acres

About 584 Commissioners Road W

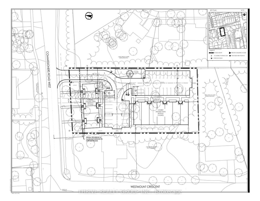
Prime Development Opportunity in Sought-After West London! Unlock the potential of this exceptional nearly 1-acre development site, perfectly positioned just steps from the vibrant intersection of Commissioners Rd West and Wonderland Road. This near shovel-ready property comes with an approved plan for a modern stacked townhome community, featuring 27 stylish units across two architecturally designed buildings. Whether you're a seasoned builder or a savvy investor, this is your chance to break ground in one of London's most desirable neighbourhoods. Surrounded by top-tier amenities, shopping, dining, and convenient transit options, this A+ location promises strong market appeal and future growth. Don't miss this rare opportunity to bring a visionary residential project to life in a high-demand area.

Features of 584 Commissioners Road W

MLS® # X12409616
Price $2,250,000
Bathrooms 0.00
Square Footage < 700
Acres 0.99
Type Residential Freehold
Sub-Type Vacant Land
Status Active

Community Information

Address 584 Commissioners Road W
Area Middlesex
Subdivision South M
City London South
Province ON
Postal Code N6K 1B7

Amenities

Is Waterfront No
Waterfront None

Interior

Fireplace No

Listing Details

OfficeTHRIVE REALTY GROUP INC.

Listing Map

Request a Showing

Provide a valid email address.
When would you like to view this property?