About N/a Garrard Road
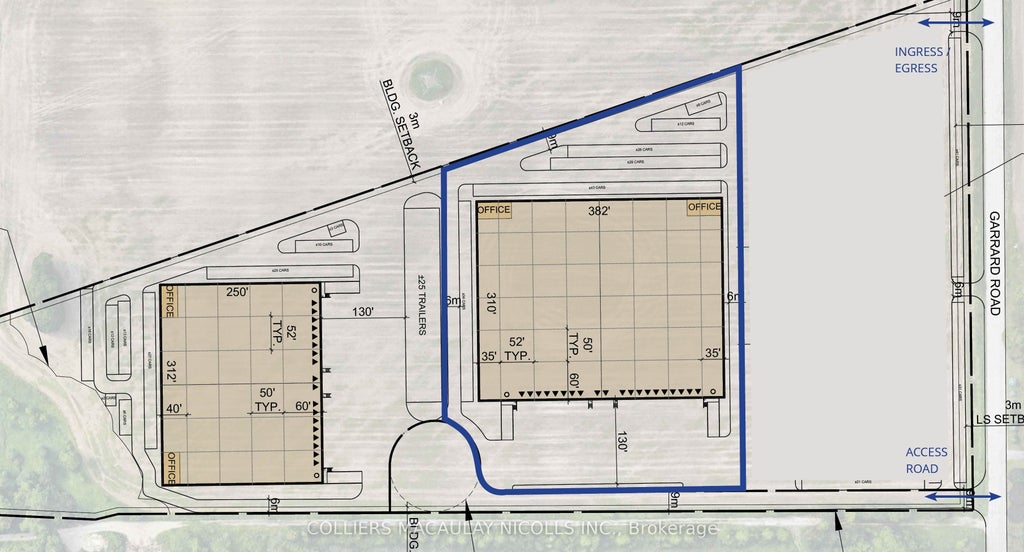
Design-build opportunity in prime Whitby location. +/- 118,000 SF proposed freestanding building with the opportunity to customize to suit. Pending site plan approval. Access to variety of amenities & large labour pool. 130' shipping court depth, 52'x50' bay sizing & staging bay. Heavy power available. LEED & Zero Carbon certification available.
Features of N/a Garrard Road
| MLS® # | E8029602 |
|---|---|
| Price | $1 |
| Bathrooms | 0.00 |
| Type | Commercial |
| Sub-Type | Industrial |
| Status | Active |
Community Information
| Address | N/a Garrard Road |
|---|---|
| Area | Durham |
| Subdivision | Rural Whitby |
| City | Whitby |
| Province | ON |
| Postal Code | L1M 1X1 |
Amenities
| Garages | Outside/Surface |
|---|---|
| Is Waterfront | No |
Interior
| Heating | Gas Forced Air Open |
|---|---|
| Cooling | Yes |
| Fireplace | No |
Listing Details
| Office | COLLIERS MACAULAY NICOLLS INC. |
|---|
